Amazon, a través de su segmento de servicios en la nube, Amazon Web Services (AWS), e IPI Partners, una firma de capital privado de infraestructura digital, que es una empresa conjunta entre ICONIQ Capital y Iron Point Partners, han intercambiado terrenos y plataformas eléctricas en el norte de Virginia a través de dos transacciones por un valor combinado de 233,3 millones de dólares. Como parte de estos acuerdos con Amazon, STACK Infrastructure, un desarrollador y operador de centros de datos de hiperescala respaldado por IPI Partners, está ganando más terreno urbanizable en el norte de Virginia.
A través de dos transacciones separadas, Amazon Web Services (AWS) compró 56,7 acres de tierra y dos depósitos eléctricos en el condado de Loudoun de IPI Partners por 146 millones de dólares (Quail Ridge) y vendió 92,0 acres de tierra en el condado de Prince William a STACK Infrastructure, que cuenta con el respaldo de IPI Partners, por 87,4 millones de dólares (Innovation Drive).
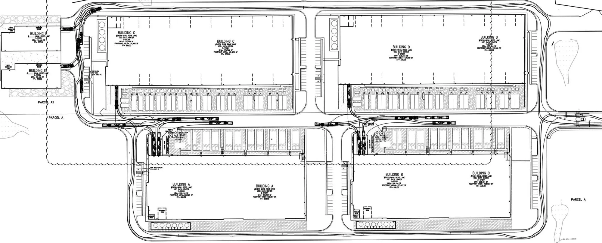
Quail Ridge: Amazon Web Services (AWS) compra a IPI
El 30 de diciembre de 2021, Amazon.com, Inc., a través de su subsidiaria de propiedad absoluta Amazon Data Services, Inc., adquirió 56,7 acres de terreno y dos depósitos eléctricos ubicados en 24214 y 24244 Quail Ridge Lane en Aldie, condado de Loudoun, Virginia. En concreto, Amazon adquirió esta propiedad por 146 millones de dólares, lo que implica una valoración de 2,57 millones de dólares por acre. El vendedor fue Quail Ridge NCP LLC, una entidad controlada por IPI Partners.

Haga clic aquí para ver una versión más grande de esta imagen.
Como se muestra arriba, la entrada al sitio Quail Ridge de Amazon Web Services está ubicada en el lado norte de la autopista John Mosby (Ruta 50), aproximadamente 1 milla al oeste de Stone Springs Boulevard (Ruta 2625). Además, la parcela de terreno está al suroeste de Arcola Mills Drive (Ruta 621) y al oeste de Arcola Boulevard (Ruta 842).
En particular, el sitio de Amazon Web Services está adyacente a una parcela de tierra de 67 acres, conocida como IAD 11, propiedad de Microsoft Corporation, ubicada en 41840 Growth Mindset Lane en Aldie, condado de Loudoun, Virginia.
LEER MÁS: Centros de datos de Amazon (AWS) y Microsoft en Virginia
Plan de desarrollo
Según el último plan de sitio aprobado por Quail Ridge, el desarrollo de seis edificios, con una superficie bruta (GFA) combinada de 992,3 mil pies cuadrados para uso de centro de datos, es posible en el sitio. Hasta la fecha, dos de estos seis edificios, a saber, el Edificio A y el Edificio B, ya se han construido, con un total de GFA de 412.400 pies cuadrados.

Haga clic aquí para ver una versión más grande de esta imagen.
A continuación se muestra un desglose adicional de los posibles diseños de construcción en el sitio de Quail Ridge:
| Centro de datos | Estado | Altura | Pies cuadrados |
| Edificio A | Construido | 2 pisos | 206,2k |
| Edificio B | Construido | 2 pisos | 206,2k |
| Edificio C | Planificado | 2 pisos | 275,5k |
| Edificio D | Planificado | 2 pisos | 275,5k |
| Edificio E | Planificado | 1 piso | 14,4k |
| Edificio F | Planificado | 1 piso | 14,4k |
| Totales | — | — | 992,3k |
Impulso de innovación: compras STACK de IPI en Amazon
El 29 de diciembre de 2021, STACK Infrastructure, a través de la entidad STACK Innovation Holdings LLC, adquirió 92.0 acres de terreno ubicado al final de Innovation Drive en Manassas, Condado de Prince William, Virginia. En concreto, STACK adquirió este terreno por 87,4 millones de dólares, lo que implica una valoración de 950.000 dólares por acre. El vendedor fue Amazon.com, Inc., a través de su filial de propiedad absoluta Amazon Data Services, Inc.

Haga clic aquí para ver una versión más grande de esta imagen.
En febrero de 2022, STACK Infrastructure separó este sitio en cinco parcelas de terreno distintas, ubicadas en 10675 University Boulevard, así como en 9680, 9700, 9720 y 9740 Innovation Drive en Manassas, Virginia.
Manassas, condado de Prince William, Virginia
Innovation Drive de STACK Infrastructure forma parte de un creciente grupo de centros de datos y terrenos urbanizables que la empresa posee en Manassas, Virginia. En primer lugar, STACK controla otros 25 acres ubicados al otro lado de Prince William Parkway (Ruta 234), donde se encuentran sus centros de datos NVA02/03 y NVA04. En segundo lugar, la empresa está desarrollando otros 34 acres de terreno, sólo 1 milla al noreste, en su campus NVAL3.
NVA02/03 y NVA04
Los centros de datos NVA02 y NVA03 de STACK Infrastructure están situados en 25 acres en 9750 Hornbaker Road en Manassas, Virginia, y están adyacentes a una subestación de 250 megavatios. Además, en el mismo terreno, NVA04 es una instalación shell motorizada que ofrece 72 megavatios de capacidad de energía en 700 mil pies cuadrados.

Haga clic aquí para ver una versión más grande de esta imagen.
NVAL3
STACK Infrastructure está desarrollando un nuevo campus de centro de datos de hiperescala de 84 megavatios y 602 mil pies cuadrados en 8911 Freedom Center Boulevard en Manassas, condado de Prince William, Virginia, que se conocerá como NVAL3.

Haga clic aquí para ver una versión más grande de esta imagen.
LEER MÁS: en Ashburn, Virginia STACK está desarrollando un campus de hiperescala de 216 MW